浅谈建筑声学施工中几个值得注意的问题
发布时间:2018-12-06 , 发布人:华恒智信分析员
建筑声学施工工艺的高低和施工质量的优劣是工程成败的关键,从某种意义上来说它比建筑声学设计更为重要。中国不少的建筑设计院、专业设计公司,在建筑声学设计领域有着丰富的经验,设计出了许多音质优秀的录音室、演播室、听音室、电影院、剧院、体育馆等。但是,由于许多建筑施工单位没有从事建筑声学施工这方面的工作经验,也不懂得声学施工工艺,所以很难保证声学施工质量,以致有些重大声学工程的声学环境也未能满足使用要求。
建筑声学是室内声学的基本条件,它包括隔声、隔振、降噪和音质控制。一般声学房间出现隔声指标达不到设计要求主要涉及三个因素:
( 1 ) 孔洞与缝隙;
( 2 ) 隔振与隔声;
( 3 ) 管道隔振与隔声。
孔洞与缝隙
声学房间如果在砌墙时没有做到满浆、密缝,墙体上出现缝隙和孔洞,当声波的波长比孔洞尺寸小得多时,声波会从孔洞中直接穿过并保持原来的波形继续传播,另外声波还会绕过孔洞的边缘进入墙立面的背后传播,这将大大降低墙体的隔声量。

孔洞效应示意图
采用石膏混合砌块、加气混凝土砖、膨胀珍珠岩板材料的轻型墙体,密度大多在 60 ~ 100 kg /m2,隔声量为 35 ~40 dB。单层重墙,如 120 砖墙、100 厚混凝土墙板等,面密度在 250 kg /m2 左右,隔声量在 45 dB左右。240 砖墙、200 厚混凝土墙的面密度超过 500kg /m2 隔声量可达 50 ~55 dB 左右。
隔声量一般可以粗略地理解为墙体两边声音分贝数的差值,但绝对不是差值这样简单。例如,一面墙体上有细小孔洞或缝隙,能透射过入射声能的1%时,墙体的隔声量并不是入射声级的 99%,而是 20dB。即入射声级是 50 dB 时,隔掉的是 20 dB; 入射声级是80 dB 时,隔掉的也是 20 dB。隔声量仅仅是20 dB,由于墙上有缝隙和孔洞,大大降低了墙体本身的隔声性能。所以有声学要求的房间在砌墙时,砌块之间不得留有缝隙或孔洞,必须做到满浆满缝,那种用玻璃棉来填缝、堵洞的做法是完全错误的。
隔振与隔声
1) 轻质隔墙
对于广泛采用的轻钢龙骨石膏板隔墙,板材直接固定在龙骨上时,受声一侧板的振动会通过龙骨传到另一侧板,这种像桥一样传递声能的现象被称为声桥。声桥越多,接触面积越大,刚性连接越强,声桥现象越严重,隔声效果就越差。在板材和龙骨之间加装弹性材料垫,并在空腔中填充玻璃棉,对石膏板墙隔声有一定的改善。此外,轻钢龙骨本身刚度比较小,有一定的弹性,对两侧板材的声桥作用要好于矩形截面的木龙骨,轻钢龙骨石膏板隔墙要比相同构造的木龙骨石膏板隔墙隔声效果好。

双层石膏板隔声墙示意图
当石膏板隔墙每面为两层石膏板时,应错缝安装,接缝必须在龙骨处完成,并进行勾缝处理。另外,为了防止石膏板隔墙和原砖墙结构之间产生缝隙,通常安装龙骨时先在石膏板墙体四周垫入弹性橡胶条。
一般双层隔声结构墙,在采用同一种材料时应选用不同的厚度,以避免这两层出现相同的吻合频率产生共振。在施工中要特别注意,两层结构之间不能有刚性连接,有时就因为一颗螺丝或一根钢筋,就破坏了固体—空气—固体的双层隔声结构,使两层固体隔层刚性相连,使隔声量大大降低。尤其是双层轻质结构隔声墙,相互之间必须相互支撑或连接时,一定要用弹性构件支撑或悬吊,同时注意两个隔墙的空间,不能有缝隙或孔洞相通。

2) 双层重墙
对于一些要求较高的专业声学房间,如录音室、演播室、视听室、声学测试室、消声室等,有时需要设计隔声隔振双层重墙。质量定律指出材料越重( 面密度或单位面积质量越大) 隔声效果越好。对于单层实墙,面密度每增加一倍,隔声量在理论上增加6 dB。如 120 砖墙,90 厚空心混凝土砌块、100 厚混凝土墙板等,面密度大于250 kg /m2,计权隔声量 RW 可达45 dB 左右。240 砖墙、200 厚混凝土墙等面密度超过500 kg /m2 的计权隔声量 RW 可达 50 ~ 55 dB。

上图为240 砖墙内外墙基础不断开,内外墙之间留有 300 mm空腔
该双墙计权隔声量 RW 为 65 dB 左右。

上图为240 砖墙内外墙基础断开,内外墙之间留有 300 mm 空腔示意图
计权隔声量 RW 为 76 dB 左右,计权隔声量RW 比连基础重墙高 12 dB 左右。在断基础双墙施工时,必须注意双墙空腔内不得有水泥砂浆、砖块、钢筋等任何刚性材料的连接。如内外墙之间必须要通过线管、水管或通风管道时,应做专门的隔声隔振处理。
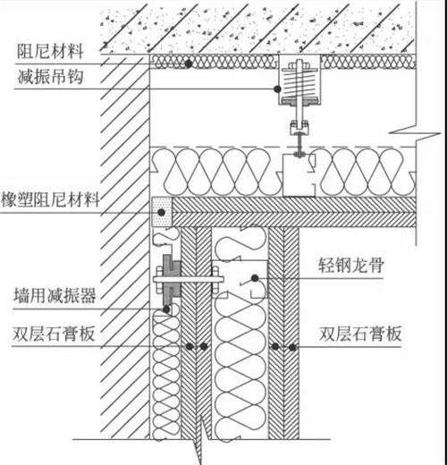
3) 隔声吊顶
在结构楼板下用金属减振吊钩或橡胶减振吊钩悬挂隔声板,使楼板与隔声吊顶柔性隔离

图为隔声吊顶剖面示意图
隔声吊顶的重量应不小于 25 kg /m2,并在顶棚的空气层内铺放吸声材料,如矿棉、玻璃棉等。隔声吊顶可采用双层或四层石膏板、硅钙板、埃特板等密度较大的材料制作。吊顶和四周墙体之间的缝隙应采用专用橡胶条密封以免漏声。金属减振吊钩或橡胶减振吊钩的悬吊点数目应尽可能少,以减少声桥现象的发生。吊顶上铺上一定厚度的多孔吸声材料,会使隔声量有所提高。
隔声吊顶内电缆、消防管线穿透隔声吊顶时,必须做好隔声隔振处理,并用密封胶密封,防止漏声。照明灯具、空调出风口等要做专门的隔声隔振处理。隔声吊顶与隔声墙连接时,结合部应在隔声墙上面,隔声吊顶四周与结构墙之间应垫以阻尼材料。

图为隔声吊顶与隔声墙连接剖面示意图
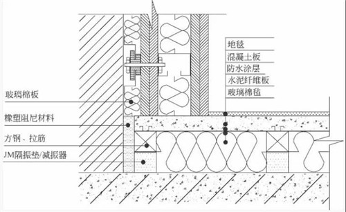
4) 浮筑地面
在地面板与承重楼板之间配置弹性垫层材料,如减振垫、矿渣棉、玻璃棉毡等材料,使地面板与承重楼板隔离开,这种结构有着良好地隔声隔振效果,结构楼板和浮筑楼板的总体隔声性能指标计权隔声量RW 可达 60 dB。
浮筑地面施工时要注意隔振层的防水处理,一般采用1.0~1.5 mm 厚聚氨脂作为防水层,防止在浇筑混凝土板地面时水泥浆流入隔振层,降低隔振效果。各板接缝应封堵严密,接缝尽可能在龙骨处完成。
浮筑地面施工工艺流程为: 基层找平—减振垫或减振器定位并用建筑胶固定—铺放玻璃棉毡或岩棉—铺放12 mm 厚水泥纤维板—封堵板缝—涂布1.0~1.5mm 厚聚胺脂防水层—铺放钢筋网—浇筑混凝土地面。

图为浮筑地面剖面示意图
5) 隔音门
隔音门需要随时开启,因而它的隔音性能和制作材料与墙体有很大不同,门的隔音不仅依赖于门扇的隔音性能,而且主要受到门扇与门框之间缝隙的严重影响。隔音门既要考虑轻便牢固、开启灵活、经济实用等素,又要尽量提高门的隔音性能。木质结构的门用木板、胶合板、纤维密度板等材料制成的门重量较轻,受空气湿度的影响较大,门缝隙随季节变化,所以隔声较差。钢质结构的门以型钢为框架,钢板作为门扇面层,门缝加装密封条,隔音可做到 40 ~50 dB。
(6) 隔音窗
声学房间还有一个隔音薄弱之处是窗户。单层8 mm 左右玻璃的隔音量只有 25 dB 左右。玻璃很重,是一种较好的隔声材料,厚度相同时,玻璃的隔音量比水泥还大。现在流行采用中空玻璃做隔音窗,其实中空隔音玻璃比同等厚度普通玻璃的隔音量增加很少。因为一般两层玻璃之间的空气层厚度不足1 cm,两层玻璃被密封的空气紧密地耦合在一起,某些频率会发生共振,因此中空玻璃的隔音效果并不理想,所以认为中空玻璃比同样厚度的普通玻璃隔音性能好很多的观念是错误的。
有一种夹胶玻璃的隔音性能要高于中空玻璃,它在两层玻璃之间夹有 5 ~10 mm的透明胶层,当声波入射时,受声面玻璃产生振动,经过透明胶质层的阻尼作用,衰减后的声能再传到内层玻璃,这种夹胶玻璃比厚度相同的普通玻璃的计权隔声量 RW 高 5 ~10 dB。
管道隔声与隔振
电缆管、消防管线、照明灯具、空调出风口等穿透隔声吊顶层或隔声墙体时,必须做好隔声隔振处理,每一种管道都有可能成为传递声波的桥梁,就是常说的声桥。根据不同用途的管道,分别做专门的隔声隔振处理。
管道穿过隔声吊顶层或隔声墙体时通常采用局部安装橡胶软管,使室内和室外的管道通过橡胶软管柔性连接。
实践表明,室内与室外采用两根软管的隔振方法比采用单根软管隔振方法平均隔声量可提高艺术感染力大大增强,并具有模仿高胡、二胡、中胡、板胡和提琴等弦乐音色的性能。近年来,电子线路越来越广泛地用于改良民族乐器中,在 CPRSABS 数据库中,由各种民族乐器改良的电声民族乐器专利申请也呈上升趋势,出现了电子笛( CN2206488Y) 、电子筝( CN102097091A) 、电子中阮( CN102097089A) 、电子琵琶( CN10209708)
总结
建造一个声学环境优良的房间,必须进行专门的建筑声学设计,在专业建筑声学设计的前提下,下一步就是专业的声学施工。现场施工人员要懂得声学施工技术和施工工艺,从砌墙开始,就要按声学施工要求严格把关,密缝堵洞。而按声学设计要求选用各种专用的施工材料和器具,这是建筑声学工程成功的另一个重要保障。
来源:电声技术
作者:杨玮礁
扫一扫,关注

